2024受賞作品|リノベーション|四国中央

HOME | 受賞履歴 | 2024受賞作品|リノベーション|四国中央

2024年
ジェルコリフォームコンテスト
中国四国支部佳作

大切に受け継がれた…祖父母の家リノベ

2024年
ジェルコリフォームコンテスト
中国四国支部佳作

大切に受け継がれた…祖父母の家リノベ
趣を残しつつリノベーションされた、落ち着きある玄関
A様邸(四国中央市) 築50年木造平屋

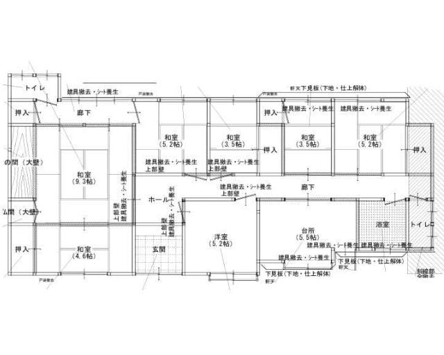
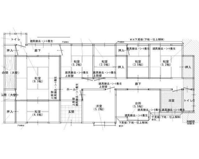
Before

リノベーション前の間取り

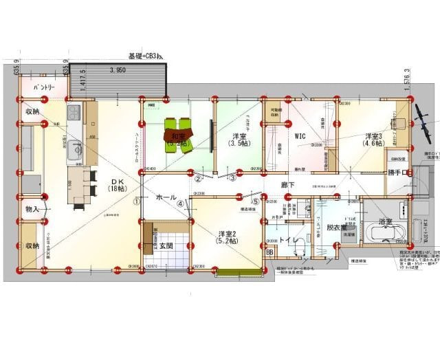
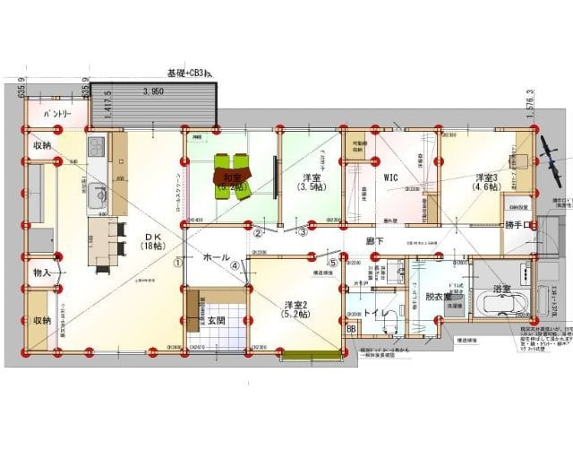
After

リノベーション後の間取り
リノベーション前の間取り
リノベーション後の間取り

  Before

         After

リフォームの動機・ご要望


ご夫婦はマンションでの暮らしをされていましたが、第一子の誕生を機に、住まいの広さや生活環境について見直しを始められました。新築住宅の購入も検討されたそうですが、ご実家の敷地内に、かつて祖父母が住んでいた思い出深い住宅が残っており、建物自体も十分に住める状態だったことから、その家をリフォームして住み継ぐという選択をされました。

プラン決定の工夫とポイント


かつて唯一の続き間だった和室を軸に、耐震性にも配慮しながら柱の位置を見直し、空間同士をつなげることで、開放的なLDKを確保しました。また、北側の窓から望む隣家の美しい庭を、あえて“借景”として取り込み、室内にいながらも外とのつながりを感じられる、豊かな住空間を演出しています。

北の窓から借景した隣家の庭
隣家の庭を借景として取り入れ、外とのつながりを感じられる空間に。
日当たりの良い南側の窓際に、ダイニング兼子どもの遊び場スペースを配置。
家づくりの思い出を刻んだ、手形入りの施主DIY塗り壁
ご夫婦で丁寧に仕上げた、思い出のDIY塗り壁。

窓越しに広がる借景の緑を楽しめる、ダイニングキッチン 機能的で清潔感のあるキッチン 外の景色を借景として取り込んだ和室 家の中をつなぐ、まっすぐに伸びた廊下 ゆったりと広く設計されたトイレ 家の妻面に飾られた家紋 清潔感のある浴室 木のフローリングと白い壁が調和した洋室 パントリーに設置された使いやすい可動棚 木製の棚やハンガーパイプを備えたウォークインクローゼット キッチン作業スペース 20231205115729_p10702.jpg

施主様の感想


はじめての家づくりで疑問ばかりの中、親身になってくださりありがとうございました。広いリビングに造作カウンター・外壁の家紋がお気に入りです!!家全体が暖かくてびっくり!