2021受賞作品|リノベーション|新居浜

HOME | 受賞履歴 | 2021受賞作品|リノベーション|新居浜

2021年
ジェルコリフォームコンテスト
中国四国支部佳作

侘び・寂びのエントランス

2021年
ジェルコリフォームコンテスト
中国四国支部佳作

侘び・寂びのエントランス
和風植栽がアクセントになった、趣ある玄関ポーチの外観
M様邸(四国中央市) 築60年木造平屋

Before

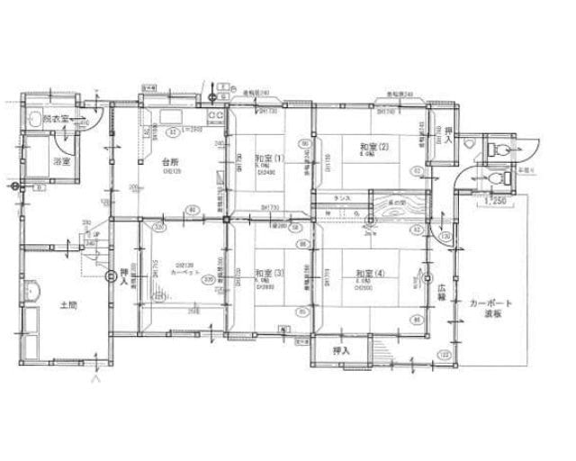
リノベーション前の間取り

After

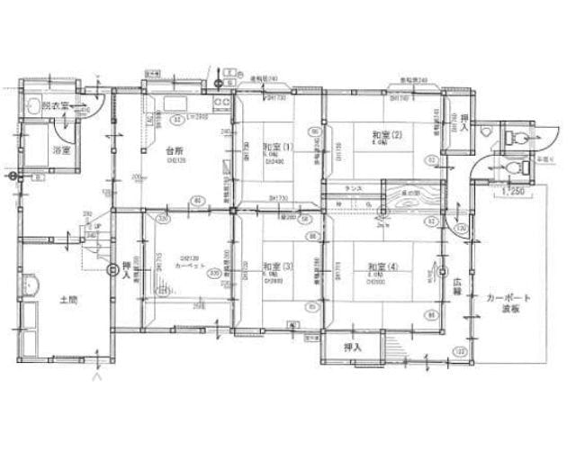
リノベーション後の間取り
リノベーション前の間取り
リノベーション後の間取り

  Before

         After

リフォームの動機・ご要望


現在お住まいの離れは、4人家族で暮らすにはやや手狭で、断熱がされておらず、夏の暑さや冬の寒さがとても厳しい環境でした。同じ敷地内には、かつて祖父母が住んでいた空き家があり、当初はその建て替えを検討されていましたが、さまざまな事情を踏まえ、最終的にはリノベーションで再生するという選択に至りました。

プラン決定の工夫とポイント


古き良き外観の趣はそのままに、“凛”とした印象の和モダンな木製の玄関戸と、アルミ製の庇・アプローチにこだわりました。玄関の位置も奥まった場所へ変更したことで、アプローチの動線が長くなり、建物全体に奥行きが感じられるようになりました。

柱壁を増やすことで、耐震性にも配慮
柱壁を増やすことで、耐震性にも配慮。
雨の日も濡れずに出入りできる玄関まわり
雨の日も濡れずに出入りできる玄関まわり。
日常が心地よくなるアプローチ空間
日常が心地よくなるアプローチ空間。

古い梁がアクセントになった、木の温もりが感じられるリビング 見せ梁と木の床が調和する、別角度からのリビングの様子 静かな環境を感じさせる、窓から自然光が差し込む寝室 ダイニングにある可動棚とパントリーの扉 窓から自然光が差し込む、リラックスできる浴室空間 和の趣を感じさせる玄関外観 窓から自然光が入るトイレの様子 可動棚収納でタオルや着替えをすっきりと収納できる脱衣室 ウォークインクローゼット、階段下を利用した収納スペース 玄関隣のコンパクトな手洗い場 ライトアップされた植栽と玄関が織りなす、夜の和モダンな外観 ある子供部屋の収納スペース

施主様の感想


狙い通りのイメージでとても満足しています。仕事が交代制勤務のため、夜間に帰宅することが多いのですが、ほのかに灯る玄関灯を見ると、我が家に帰ってきた実感と新しい玄関になった喜びをとても感じています。家族みんな大満足です。